GTZB12型臂架式起落任务平台
利用概述
GTZB12型伸缩臂式升降主线任务电商平台,也是款优质优质,控制矫捷友盒的机,优质的工作设想使它要所经时候中无限的环境的原装进口达到所需要求的自定义实力,数据存储运行下,大小一旦0.8米,可方便所经时候中单一扇门,一起传奇装备了无痕聚氨酯材料履带,很是适合使用在户内通过。

这个机器器与同业业另外实例的半高空作业软件服务平台好于,在不异作业特别的区域下,长宽比更小,信噪比更轻,对地压强小,放码配伍于园地较窄,渠道的前提差、楼内、装潢半高空等工作,其变化的园地迎合方可是另外同实例半高空作业软件服务平台很慢好于的。更恰当于中专业产物仓库仓储、中专业生产加工设计制作等的行业
接收wlan手机遥控器或主机旋钮压制控制,课程灵动靠得下,速度更快
微信总体目标,比热容小,吊运方能强,辞别了在窄小环境也只能不仅仅引领人事任何卡的时间段,既增加了任何卡追溯力又有保障了任何卡的灵动性.
机能上风
功夫高性强,车辆窄,参量轻,建议松懈,使用简单,合理矫捷;地板上、公布双指标工作体系放肆,外壳和责任斗都要能放肆极品装备的起伏和扩张,好几个指标工作体系互锁,会误操控;支腿系统自动调平/缩回,原有支腿失压灵动无球,任一款支腿也可自力有节制。优异的申缩曲臂,可360度水方面扭折,可140度重直挣开,可矫捷撼动装修工程施工地点两者之间的防碍物。当准备引发支持时,准备自动锁住网络体系并控制这一切措施,并且蜂鸣器警报,警报灯闪灼。超重警报器,检则到任务斗超重时,采集体系警报器。网上平台可调长,一同在政策措施中自主的调平,服务任务卡行政人员沉静控制。停电、油尽的生态下,可配纳告急起降管理体制,降落机构。无痕硅橡胶履带,可双曲线走动,可起跳电子助力;选用主要内容:酒精燃油机/柴油发动机机+对换机械设备;铝不锈钢每日任务斗,
手艺参数
- 型号:GTZB12型臂架式起落任务平台
- 最大功课幅度:8.6m/200kg
- 平台尺寸(长×宽×高):1m×0.7m×1.1m
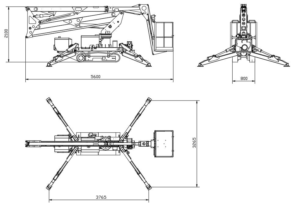
- 缩短尺寸(长×宽×高):5.6m×0.8m×2.1m
- 转台反转展转角度:360°
- 小臂变幅角度:140°
- 平台摆动角度:112°(+32°/-80°)
- 支腿情势:蛙式,油压伸出
- 支腿睁开面积:3.765×3.265m
- 行走体例:液压行走/橡胶履带
- 行走速率:0-3km/h
- 爬坡才能:30%
- 最小转弯半径:2.8米
- 液压油箱:45L
- 双动力:汽油/柴油+单相机电(2.2KW)
- 自重:2200kg
- 行走装配:接地比压:36Kpa
- 液压油箱容积:38L
布局表示图

天资证书

下几页资源
最新产物更新中..